西葛西駅徒歩6分の好立地。便利な周辺環境と充実した設備で、暮らしやすさが魅力です。
当社でご用意しているお部屋は全て禁煙ルームとなります。予めご了承ください。
ご利用料金(1ヶ月以上)
利用料(賃料+水道光熱費)
23,860
賃料:22,760
水道光熱費:1,100
キャンペーン
3月3日~3月10日までにご利用開始の方限定
11,980
※原則、ご延長時は定価でのご案内となります。
ルーム
クリーニング
74,800
キャンペーン
37,400
住宅保険
1ヶ月あたり830
※法人様にて包括保険ご加入の場合はご相談ください。詳しくはこちら
スペシャルSALE・ロングSALE限定
ルームクリーニング代 分割払いOK!
ルームクリーニング代は一括払い・分割払いから選択可能。
分割払いの場合は、1ヶ月単位で分割でき、最大4回払いのお支払いが可能。
※ルームクリーニング代が割引されているプランに関しては分割不可となります。※詳しくはお問い合わせください。
空室検索・概算見積もり
ご利用期間
禁煙ルーム
入居人数(6歳以上)
空室状況
概算見積もり
※包括保険に加入済みの場合は必要ではありません
※概算見積もりは最終的な利用料金を確定するものではありません。
※鍵のお受け取りを配送希望の場合は別途配送料が発生いたします。
アットインは安心価格!
別途費用掛かりません!
「中小企業からニッポンを元気にプロジェクト」
公式アンバサダー 前田敦子
費用のご説明
清掃料金、住宅保険以外は全て利用料に含んだ価格です。
-
保証料・契約手数料・管理費など
0円
-
インターネット費用
※東海エリアの一部物件除く0円
お支払い体系
- 一括払い
- 月々払い
お支払い方法
- 銀行振込
- クレジットカード
料金のお支払いは契約開始日より前に全額お支払いいただく一括払いと、毎月の請求にてお支払いいただく月々払いがございます。
お支払い方法は銀行振込、クレジットカード決済から、ご希望の方法をお選びください。
領収書の発行も可能でございます。ご入用の場合はお申し付けください。
詳細情報
| プラン名 | 【スペシャルSALE】アットイン西葛西3-3 | ||
|---|---|---|---|
| 住所 | 〒134-0088 東京都江戸川区西葛西3-4-25 Googleマップで開く | ||
| 交通 |
西葛西駅
( 東京メトロ東西線 ほか ) 徒歩 7分
|
||
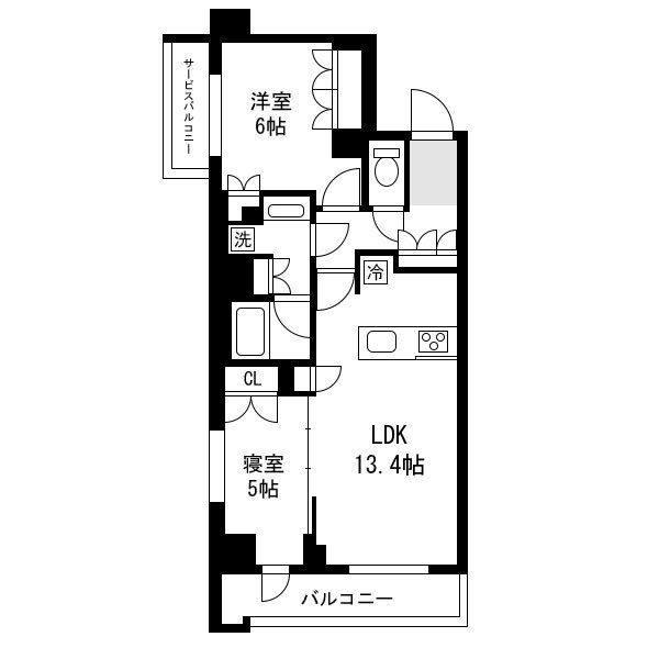
| 間取り | 2LDK | 専有面積 | 58.66 |
| 築年月 | 2025年07月築 | 総階数 | 7階建 |
| 建物種別 | マンション | 建物構造 | RC造 |
| 間取り | 2LDK | ||
| 専有面積 | 58.66㎡ | ||
| 築年月 | 2025年07月築 | ||
| 総階数 | 7階建 | ||
| 建物種別 | マンション | ||
| 建物構造 | RC造 | ||
| 設定人数 | 1(最大:4)※2名以上でご利用の場合は追加料金が発生します。詳しくはお問い合わせください。 | ||
| ベッドタイプ | 2台:ダブル | ||
| 主な設備 |
|
||
アットインが快適な秘密♪
-

Wi-Fi無料
アットインは無料Wi-Fiが無制限使い放題!動画でもゲームでも、入居初日からサクサク使うことができます。
※一部非対応の物件がございます。 -

着替えだけで滞在可能
基本備品60種以上だから、準備するのは着替えだけ!少ない荷物で滞在が可能です。
-

入居時からキレイな部屋
アットインは2ステップ体制で抜かりない清掃を実現。定期清掃も対応可能です。
備品・設備
- エアコン
- テレビ
- 掃除機
- 洗濯機またはコインランドリー
- 冷蔵庫
- 電子レンジ
- トースター
- 電気ポット/ケトル
- 炊飯器
- ドライヤー
- アラームクロック
- インターネット接続機器
- ソファー
- テレビボード/テレビスタンド
- カーテン
- ベッド
- 掛布団・掛布団カバー
- ベットパット
- 毛布・毛布カバー
- 枕・枕カバー
- 敷シーツ/ボックスシーツ
- フライパン
- 片手鍋
- 包丁
- 包丁研ぎ
- おたま
- フライ返し
- しゃもじ
- 計量カップ
- 茶碗
- 汁椀
- どんぶり
- 洋皿(2枚)
- マグカップ
- ガラスコップ
- コップトレー
- スプーン
- フォーク
- キッチン洗剤
- バスタオル
- バスマット
- バスチェアー (ユニットバスの場合は無し)
- ウォッシュボウル(ユニットバスの場合は無し)
- トイレブラシ
- バス洗剤
- ハンガー(10本)
- クリップ付ハンガー
- スーツ用ハンガー
- 角ハンガー(ピンチハンガー)
- 卓上ミラー
- 電源タップ(延長コード)
- ソープトレー
- 靴べら
- 物干し竿/ワイヤー (ベランダが有る物件のみ)
- ゴミ箱
- ご案内ファイル
- 灰皿(喫煙部屋のみ)
- フェイスタオル
- まな板
- シャンプー(3パック)
- コンディショナー(3パック)
- 固形ソープ(石鹸)
- 洗濯洗剤
- バススポンジ
- キッチンスポンジ
- ティッシュペーパー
- トイレットペーパー
- スリッパ
- ダイニングテーブルセット4人掛け
※画像には撮影用小物が含まれている場合がございます。備品類につきましては備品設備覧をご確認ください。また、画像が現況と異なる場合は、現況を優先いたします。
周辺マップ※ 各周辺施設名をクリックすると、その施設までの経路を表示します。
- 複合モール
ジーンズメイト西葛西店
徒歩 3 分 - ドラッグストア
ドラッグストアいわい西葛西サンパティオ店
徒歩 4 分 - ビデオ・CD
ゲオ西葛西店
徒歩 4 分 - その他レジャー
タイトーFステーション西葛西店
徒歩 4 分 - ファーストフード
やよい軒西葛西店
徒歩 4 分 - ファーストフード
松屋西葛西店
徒歩 4 分 - ファミレス
大戸屋ごはん処西葛西北口店
徒歩 4 分 - コンビニ
セブンイレブン西葛西3丁目店
徒歩 4 分 - その他グルメ
ドトールコーヒーショップ西葛西北口店
徒歩 4 分 - ファーストフード
マクドナルド西葛西店
徒歩 4 分 - 生活雑貨
Can★Doメトロセンター3番街店
徒歩 4 分 - スーパー
ワイズマート西葛西店
徒歩 4 分 - その他グルメ
キッチンオリジン西葛西店
徒歩 4 分 - ファミレス
Sガスト西葛西店
徒歩 4 分 - ファミレス
しゃぶ葉西葛西駅前店
徒歩 4 分 - 郵便局
西葛西駅前郵便局
徒歩 4 分 - ホテル
hotel MONday東京西葛西
徒歩 5 分 - ビジネスホテル
hotel MONday東京西葛西
徒歩 5 分 - ファーストフード
なか卯西葛西駅前店
徒歩 5 分 - ラーメン
大阪王将西葛西店
徒歩 5 分 - コンビニ
ローソン西葛西駅北口店
徒歩 5 分



















